型号:EQ0V184YP
连接方式:法兰连接
适用温度:-20℃~400℃
阀体材质:不锈钢、碳钢
密封材质:304、STL、碳化钨
适用介质:适合颗粒物、结晶、结焦结垢等介质
产品概述
1. 玮控电动V型球阀的整体式阀座,做到防尘防卡防结晶设计。
2. V型开口具有锋利的刃口,在球缺体回转过程中,与阀座之间形成剪切作用,对介质具有强有力的切断力。
3. 阀杆直接采用花键连接,稳定性好
4. 刮刀片阀座:适合结垢、胶水、污泥介质
5. 防尘防卡防结晶整体阀座设计,阀杆防飞出、防火设计
6. 硅溶胶工艺,外观精致
7. 所有流到球和阀座以及阀座可加硬耐磨处理
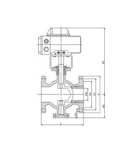
产品尺寸图

主要外形尺寸
|
公称压力 |
公称通径 |
尺寸(mm) |
||||||||
|
(mm) |
(in) |
W |
L |
W1 |
L1 |
d |
d1 |
H1 |
H |
|
|
PN1.6MPa |
25 |
- |
50 |
- |
25 |
- |
64 |
38 |
57 |
200 |
|
40 |
- |
60 |
- |
25 |
- |
82 |
49 |
63 |
205 |
|
|
50 |
- |
75 |
124 |
32 |
62 |
100 |
60 |
92 |
225 |
|
|
65 |
- |
80 |
145 |
38 |
72.5 |
120 |
75 |
100 |
235 |
|
|
80 |
- |
100 |
165 |
45 |
82.5 |
131 |
89 |
108 |
260 |
|
|
100 |
- |
115 |
194 |
50 |
97 |
158 |
113 |
117 |
270 |
|
|
125 |
- |
135 |
210 |
55 |
105 |
180 |
140 |
140 |
320 |
|
|
150 |
- |
160 |
229 |
65 |
114.5 |
216 |
164 |
177 |
340 |
|
|
200 |
- |
200 |
243 |
80 |
121.5 |
268 |
205 |
200 |
390 |
|
|
250 |
- |
240 |
297 |
90 |
148.5 |
326 |
259 |
252 |
420 |
|
|
300 |
- |
- |
338 |
- |
169 |
- |
300 |
270 |
510 |
|
|
PN2.5MPa |
25 |
- |
50 |
- |
25 |
- |
64 |
38 |
57 |
200 |
|
40 |
- |
60 |
- |
25 |
- |
82 |
49 |
63 |
205 |
|
|
50 |
- |
75 |
124 |
32 |
62 |
100 |
60 |
92 |
225 |
|
|
65 |
- |
85 |
145 |
38 |
72.5 |
120 |
75 |
100 |
235 |
|
|
80 |
- |
100 |
165 |
45 |
82.5 |
131 |
89 |
108 |
260 |
|
|
100 |
- |
115 |
194 |
50 |
97 |
158 |
113 |
117 |
270 |
|
|
125 |
- |
135 |
210 |
55 |
105 |
180 |
140 |
140 |
320 |
|
|
150 |
- |
160 |
229 |
65 |
114.5 |
216 |
164 |
177 |
340 |
|
|
200 |
- |
200 |
243 |
80 |
121.5 |
268 |
205 |
200 |
390 |
|
|
250 |
- |
240 |
297 |
92 |
148.5 |
326 |
259 |
252 |
420 |
|
|
300 |
- |
- |
338 |
- |
169 |
- |
300 |
270 |
510 |
|
|
ClASS150 |
25 |
- |
50 |
- |
25 |
- |
64 |
38 |
57 |
200 |
|
40 |
1-1/2 |
65 |
- |
25 |
- |
82 |
49 |
63 |
205 |
|
|
50 |
2 |
75 |
124 |
32 |
62 |
100 |
60 |
92 |
225 |
|
|
65 |
2-1/2 |
85 |
145 |
38 |
72.5 |
120 |
75 |
100 |
235 |
|
|
80 |
3 |
100 |
165 |
45 |
82.5 |
131 |
89 |
108 |
260 |
|
|
100 |
4 |
115 |
194 |
50 |
97 |
158 |
113 |
117 |
270 |
|
|
125 |
5 |
135 |
210 |
55 |
105 |
180 |
140 |
140 |
320 |
|
|
150 |
6 |
160 |
229 |
65 |
114.5 |
216 |
164 |
177 |
340 |
|
|
200 |
8 |
200 |
243 |
80 |
121.5 |
268 |
205 |
200 |
390 |
|
|
250 |
10 |
240 |
297 |
92 |
148.5 |
326 |
259 |
252 |
420 |
|
|
300 |
12 |
- |
338 |
- |
169 |
- |
|
|
|
|