产品型号:ZSHOF46
产品口径:DN15~200
产品压力:PN0.6~1.6MPa
产品材质:铸钢、不锈钢衬聚四氟乙烯F46 /F4/PFA/ PO
产品概述
气动衬氟调节球阀是由球阀、气缸式执行机构及控制附件组成;气动衬氟球阀密封阀座采用聚四氟乙烯,具有可靠的密封性和自润滑性,泄漏量低;气动衬氟球阀适用于一般的气、液体外,更适用于高粘度以及带有纤维状和悬浮软质颗粒的介质。
产品特点
1.耐腐蚀:几乎能耐所有的介质(包括浓硝酸和王水)的腐蚀
2.流通能力大,且介质流向不受限制
3.密封性能好、泄漏量小:密封阀座采用聚四氟乙烯,具有可靠的密封性和自润滑性,泄漏量低。
4.除适用于一般的气、液体外,更适用于高粘度以及带有纤维状和悬浮软质颗粒的介质。
5.结构简单维修方便。
6.配多弹簧的齿轮齿条气动执行结构,以及角行程的电动执行机构,方便各种环境适用,是目前用量相当大的控制。
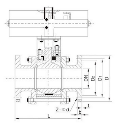
产品尺寸图

连接尺寸
|
公称通径 |
气缸长度 |
结构长度 |
法兰连接尺寸 |
(气开)、(气关) |
|||||
|
W |
L |
D |
D1 |
D2 |
f |
b |
Z—φd |
H |
|
|
DN15 |
145 |
140 |
95 |
65 |
45 |
2 |
16 |
4—φ14 |
205 |
|
DN20 |
145 |
140 |
105 |
75 |
55 |
2 |
18 |
4—φ14 |
208 |
|
DN25 |
169 |
150 |
115 |
85 |
65 |
2 |
18 |
4—φ14 |
210 |
|
DN32 |
169 |
165 |
140 |
100 |
78 |
2 |
18 |
4—φ18 |
232 |
|
DN40 |
201 |
180 |
150 |
110 |
85 |
3 |
18 |
4—φ18 |
274 |
|
DN50 |
209 |
200 |
165 |
125 |
100 |
3 |
18 |
4—φ18 |
287 |
|
DN65 |
242 |
220 |
185 |
145 |
120 |
3 |
18 |
4—φ18 |
327 |
|
DN80 |
275 |
250 |
200 |
160 |
135 |
3 |
20 |
8—φ18 |
363 |
|
DN100 |
332 |
280 |
220 |
180 |
155 |
3 |
20 |
8—φ18 |
398 |
|
DN125 |
385 |
320 |
250 |
210 |
185 |
3 |
22 |
8—φ18 |
432 |
|
DN150 |
450 |
360 |
285 |
240 |
210 |
3 |
22 |
8—φ22 |
475 |
|
DN200 |
562 |
400 |
340 |
295 |
265 |
3 |
24 |
8—φ22 |
615 |
|
DN250 |
722 |
450 |
395 |
350 |
320 |
3 |
26 |
12—φ22 |
740 |
|
DN300 |
830 |
610 |
445 |
400 |
368 |
4 |
26 |
12—φ22 |
885 |