型号:EQ0F184FP
连接方式:法兰连接
适用温度:-20℃~400℃
阀体材质:不锈钢
密封材质:PTFE、PPL、PEEK、304、STL
适用介质:水、空气、油品、弱腐蚀性介质等
产品概述
1. 玮控电动法兰球阀通过电源驱动来实现远程控制和自动化操作。
2. 电动球阀对液体介质大管径气体效果好,不受气候影响,不受空压气的压力影响。
3. 阀体有良好的耐腐蚀性、硬度高、韧性好、抗压防爆裂。
4. 电动球阀适合管道压差大,以及在密封方面要求比较苛刻的场所使用。
5. 密封圈一般是活动的,拆卸更换都比较方便,在开关适球体和阀座密封面与介质隔离,介质通过时,不会引起阀门密封面的侵蚀。
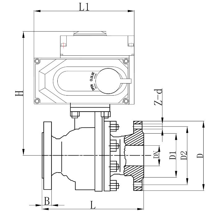
产品尺寸图

主要外形尺寸
|
公称通径 DN(mm) |
15 |
20 |
25 |
32 |
40 |
50 |
65 |
80 |
100 |
125 |
150 |
200 |
250 |
300 |
|
L |
130 |
140 |
150 |
165 |
180 |
200 |
220 |
250 |
280 |
320 |
360 |
400 |
630 |
750 |
|
H |
44.5 |
49 |
55 |
65 |
65 |
75 |
90 |
95 |
115 |
127 |
140 |
172.5 |
310 |
350 |
|
H1 |
根据所配执行机构型号而定 |
|||||||||||||
|
D |
95 |
105 |
115 |
140 |
150 |
165 |
185 |
200 |
220 |
250 |
285 |
340 |
405 |
460 |
|
D1 |
65 |
75 |
85 |
100 |
110 |
125 |
145 |
160 |
180 |
210 |
240 |
295 |
355 |
410 |
|
D2 |
46 |
56 |
65 |
76 |
84 |
99 |
118 |
132 |
156 |
184 |
211 |
266 |
319 |
370 |
|
n-φd |
4-14 |
4-14 |
4-14 |
4-18 |
4-18 |
4-18 |
4-18 |
8-18 |
8-18 |
8-18 |
8-22 |
12-22 |
12-26 |
12-26 |
|
A、A1 |
根据阀门所需力矩而定,配置机型不同,外形尺寸也不相同 |
|||||||||||||